Międzynarodowy lotniczy list przewozowy (AWB) – kompletny przewodnik dla firm korzystających z transportu lotniczego
Międzynarodowy lotniczy list przewozowy, znany jako AWB (Air Waybill), to kluczowy dokument w transporcie lotniczym. Pełni funkcję potwierdzenia przyjęcia ładunku, stanowi umowę przewozu oraz jest jednym z dokumentów niezbędnych do odprawy celnej i odbioru przesyłki. Dla firm eksportujących i importujących – zarówno okazjonalnie, jak i regularnie – prawidłowo przygotowany AWB jest jednym z najważniejszych elementów sprawnej logistyki lotniczej. Poniższy przewodnik pokazuje, czym jest AWB, jak go czytać, jakie pełni funkcje i jak uniknąć typowych błędów, które mogą prowadzić do opóźnień i dodatkowych kosztów.
Z tego artykułu dowiesz się:
- Co to jest AWB?
- Do czego służy AWB w transporcie lotniczym?
- Rodzaje AWB: podstawowy podział
- Jak czytać AWB? Najważniejsze elementy dokumentu
- Jak działa numer AWB? Algorytm i struktura
- Jak wygląda proces przygotowania AWB? Krok po kroku
- Najczęstsze błędy w AWB i jak ich uniknąć
- e-AWB – elektroniczna wersja listu przewozowego
- FAQ – najczęściej zadawane pytania
Co to jest AWB?
Air Waybill (AWB) to międzynarodowy list przewozowy stosowany w transporcie lotniczym. Dokument potwierdza, że przewoźnik przyjął ładunek do przewozu i określa warunki, na jakich transport zostanie wykonany. W przeciwieństwie do konosamentu morskiego, AWB jest dokumentem nienegocjowalnym (niezbywalnym) – nie stanowi tytułu własności do towaru. Jego funkcja jest przede wszystkim dowodowa i operacyjna.
AWB pełni trzy podstawowe role:
- Potwierdzenie przyjęcia przesyłki – przewoźnik deklaruje, że odebrał towar w określonej formie i ilości.
- Umowa przewozu – dokument określa warunki transportu zgodnie ze standardami IATA (International Air Transport Association – Międzynarodowe Zrzeszenie Przewoźników Powietrznych).
- Podstawa do odprawy celnej i wydania przesyłki – AWB jest niezbędny, aby towar został skierowany do dalszych procesów logistycznych i formalnych.
Do czego służy AWB w transporcie lotniczym?
AWB jest jednym z głównych dokumentów, na którym opiera się cała operacja logistyczna transportu lotniczego. Dla firm biorących udział w międzynarodowej wymianie handlowej oznacza to:
- szybką i jednoznaczną identyfikację przesyłki,
- podstawę do śledzenia transportu (tracking),
- możliwość przygotowania odprawy celnej,
- potwierdzenie kosztów i opłat związanych z przewozem,
- bezpieczeństwo danych o przesyłce bez udziału dokumentów negocjowalnych.
W praktyce AWB jest „językiem operacyjnym” między zaangażowanymi stronami — nadawcą, spedytorem, przewoźnikiem, magazynami oraz służbami celnymi. Poprawnie przygotowany AWB wraz z innymi dokumentami handlowymi i współpraca z doświadczonym spedytorem zapewnia bezproblemową obsługę transportu lotniczego.
Rodzaje AWB: podstawowy podział
W transporcie lotniczym funkcjonują dwa główne rodzaje AWB, wynikające z modelu organizacji przewozu.
Master AWB (MAWB)
Master AWB to dokument wystawiany przez przewoźnika lotniczego. Obejmuje przesyłkę lub konsolidację przesyłek nadawaną przez spedytora. MAWB identyfikuje przewoźnika, numer lotu i podstawowe parametry przesyłki.
Kiedy masz do czynienia z MAWB?
- gdy przesyłka jest nadawana na zlecenie importera/eksportera za pośrednictwem spedytora w relacji spedytor – przewoźnik,
- gdy spedytor konsoliduje wiele przesyłek i następnie nadaje całość jako jedną jednostkę przewozową.
House AWB (HAWB)
HAWB to dokument wystawiany przez spedytora, który potwierdza przyjęcie przesyłki od klienta. Obejmuje szczegóły dotyczące konkretnego nadawcy i odbiorcy konkretnej przesyłki.
Kiedy występuje HAWB?
- gdy korzystasz ze wsparcia spedytora,
- gdy spedytor oferuje kompleksową obsługę i oświadcza warunki przewozu między importerem/eksporterem a sobą.
MAWB i HAWB działają równolegle – to standardowy model w międzynarodowym frachcie lotniczym.
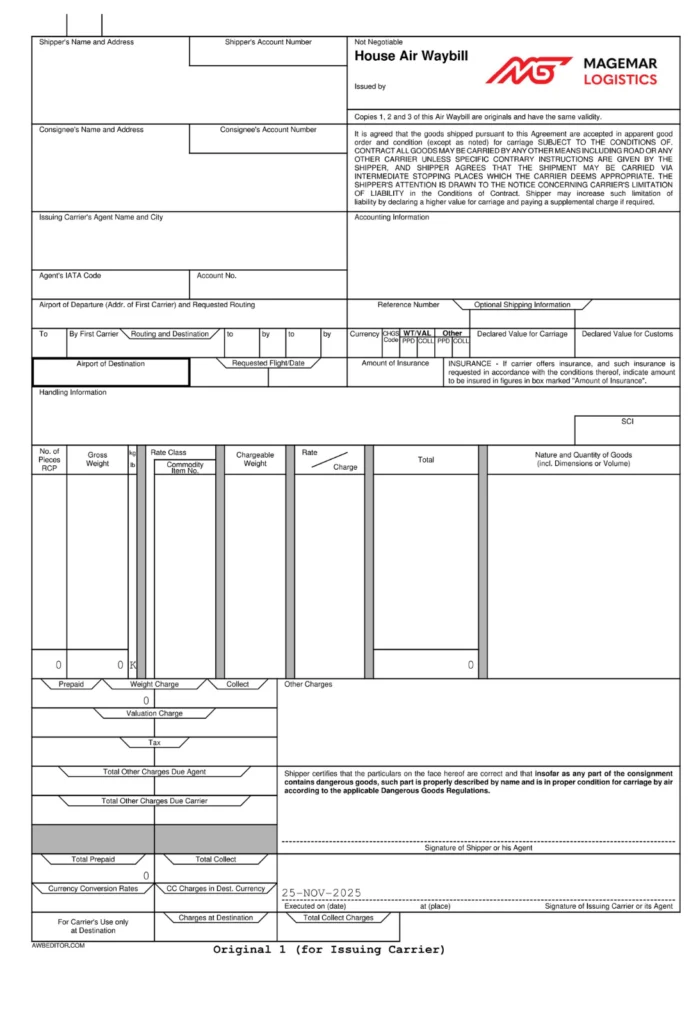
Jak czytać AWB? Najważniejsze elementy dokumentu
Każdy AWB ma standardową strukturę zgodną z zasadami IATA. Poniżej najważniejsze pola, które warto znać, aby prawidłowo interpretować dokument.
1. Dane nadawcy i odbiorcy
- nazwa firmy,
- adres,
- dane kontaktowe,
- numer identyfikacyjny (jeśli wymagany).
To podstawowe dane, od których zależy prawidłowe skierowanie przesyłki do właściwych stron.
2. Informacje o przewoźniku
- numer AWB nadany przez przewoźnika,
- nazwa przewożącej linii,
- kod IATA przewoźnika.
Numer AWB jest kluczowy dla śledzenia przesyłki i komunikacji operacyjnej.
3. Dane i opis przesyłki
- liczba opakowań,
- waga brutto,
- wymiary,
- rodzaj towaru,
- charakter przesyłki (np. zwykła, specjalna, niebezpieczna).
Informacje te mają wpływ na sposób transportu, opłaty oraz procedury bezpieczeństwa.
4. Warunki przewozu i instrukcje
- wskazanie usług dodatkowych,
- specjalne instrukcje od nadawcy,
- informacja o Incoterms®,
To pola, które definiują podział kosztów i odpowiedzialności (zgodnie z przyjętymi do transportu regułami Incoterms).
5. Dane lotu
- miejsce nadania,
- miejsce przeznaczenia,
- lot docelowy (czasem również loty tranzytowe),
- data wylotu.
Informacje te określają plan operacyjny przewozu.
Jak działa numer AWB? Algorytm i struktura
Numer AWB (Air Waybill Number) ma standaryzowaną, międzynarodową strukturę, która pozwala jednoznacznie zidentyfikować przesyłkę w systemach liniowych, lotniskowych i spedycyjnych. Każdy numer lotniczego listu przewozowego jest generowany według reguł IATA, z wykorzystaniem mechanizmu kontrolnego.
Struktura numeru AWB
Numer AWB składa się z trzech elementów:
- Prefix przewoźnika (3 cyfry)
– identyfikator przypisany przewoźnikowi przez IATA, np. 123, 176, 297 - Numer seryjny (8 cyfr)
– unikalny numer przesyłki nadawany w ramach danego przewoźnika - Cyfra kontrolna (1 cyfra)
– wyliczana algorytmicznie z poprzednich cyfr
Przykład formatu:
123-12345675
prefix (trzy cyfry) – numer seryjny (siedem cyfr) – cyfra kontrolna (1 cyfra)
Algorytm wyliczania cyfry kontrolnej AWB
Cyfra kontrolna jest generowana w oparciu o ostatnie 7 cyfr numeru seryjnego (bez prefixu).
Algorytm jest bardzo prosty i wygląda tak:
weź ostatnie 7 cyfr numeru seryjnego AWB (bez pierwszej cyfry),
podziel tę liczbę modulo 7,
wynik działania to cyfra kontrolna (0–6).
Przykład działania pokazujący system obliczania cyfry kontrolnej przedstawiono na poniższej grafice:
Jak wygląda proces przygotowania AWB? Krok po kroku
Krok 1. Dane od nadawcy
Proces rozpoczyna się od przekazania przez nadawcę kluczowych informacji o przesyłce — wagi, wymiarów, rodzaju towaru, dokumentów handlowych oraz danych odbiorcy.
Krok 2. Weryfikacja i przygotowanie dokumentacji
Spedytor lub przewoźnik analizuje kompletność i spójność danych, uwzględniając wymogi celne, bezpieczeństwa i transportu.
Krok 3. Wystawienie AWB
Na podstawie powyższych danych generowany jest AWB — przez przewoźnika (MAWB) i spedytora (HAWB).
Krok 4. Przekazanie ładunku i kontrola
Przed odprawą towar przechodzi kontrolę bezpieczeństwa, ważenie oraz weryfikację fizyczną.
Krok 5. Transport i monitoring
Podczas transportu AWB stanowi podstawę do śledzenia przesyłki i obsługi logistycznej na lotniskach tranzytowych.
Krok 6. Odprawa i wydanie
Po przylocie AWB umożliwia odbiorcy lub jego agentowi przeprowadzenie odprawy celnej i odebranie przesyłki.
Najczęstsze błędy w AWB i jak ich uniknąć
1. Rozbieżności pomiędzy dokumentami
Niespójne dane między AWB, fakturą handlową a packing list mogą prowadzić do kontroli lub opóźnień, a co za tym idzie do dodatkowych, wcześniej nieplanowanych kosztów.
Jak uniknąć?
Zapewnienie pełnej zgodności danych we wszystkich dokumentach dzięki wcześniejszemu przygotowaniu i weryfikacji dokumentów handlowych.
2. Brak jasnych instrukcji specjalnych
Brak wskazania szczególnych wymogów, którym podlega ładunek może utrudnić transport lub narazić ładunek na uszkodzenia.
Jak uniknąć?
Dokładna komunikacja ze spedytorem i dostarczenie wszystkich informacji przed wystawieniem dokumentu.
3. Błędy w danych odbiorcy
Nieprawidłowe dane mogą uniemożliwić odbiór przesyłki.
Jak uniknąć?
Podwójne sprawdzenie poprawności danych handlowych znajdujących się na AWB.
e-AWB – elektroniczna wersja listu przewozowego
Cyfryzacja procesów logistycznych wprowadziła elektroniczną formę AWB, znaną jako e-AWB. Jest to ustandaryzowana, elektroniczna wersja dokumentu, zaakceptowana przez IATA.
Zalety e-AWB:
- szybszy obieg dokumentów,
- mniejsze ryzyko błędów wynikających z ręcznego przepisywania,
- zmniejszenie liczby drukowanych dokumentów,
- usprawnienie procesów operacyjnych.
Choć e-AWB nie jest jeszcze globalnym standardem wykorzystywanym w każdym porcie lotniczym, systematycznie zyskuje znaczenie w międzynarodowej logistyce.
Podsumowanie
AWB to kluczowy dokument, od którego zależy sprawny transport lotniczy. Poprawne wypełnienie AWB i nadzór nad jego przygotowaniem znacząco zmniejszają ryzyko opóźnień, niezgodności czy dodatkowych kosztów. Zrozumienie głównych funkcji, rodzajów i struktury AWB ułatwia firmom planowanie transportu i komunikację z partnerami logistycznymi oraz płynność wymiany handlowej. Profesjonalne wsparcie spedytora dodatkowo chroni przed błędami i zapewnia płynność całego procesu.
FAQ – najczęściej zadawane pytania
Co oznacza skrót AWB?
AWB to Air Waybill – międzynarodowy lotniczy list przewozowy.
Czy AWB jest dokumentem przewłaszczeniowym?
Nie. AWB jest nienegocjowalny (niezbywalny) i nie stanowi tytułu własności towaru.
Czym różni się MAWB od HAWB?
MAWB wystawia przewoźnik, a HAWB spedytor. Oba działają równolegle przy przesyłkach konsolidowanych w transporcie lotniczym.
Czy AWB jest wymagany do odprawy celnej?
Tak. AWB jest jednym z podstawowych dokumentów potrzebnych do odprawy importowej lub eksportowej.
Czy AWB może być elektroniczny?
Tak. e-AWB to elektroniczna wersja zgodna ze standardami IATA.
Czy AWB zawiera informacje o opłatach?
Tak. Dokument zawiera dane dotyczące zastosowanych stawek i rodzaju opłat.
Kto wystawia AWB?
W zależności od rodzaju – przewoźnik lotniczy (MAWB) lub spedytor (HAWB).
Czy błędy w AWB mogą opóźnić przesyłkę?
Tak. Niespójne dane lub błędne informacje mogą prowadzić do kontroli, korekt i dodatkowych kosztów.
Czy AWB można zmienić po wystawieniu?
Tak, ale zwykle wymaga to aneksu, zgody przewoźnika i/lub spedytora oraz ujednolicenia danych we wszystkich dokumentach.
Wierzymy, że powyższy artykuł wyjaśnił kluczowe kwestie związane z lotniczym listem przewozowym AWB. Jeśli macie dodatkowe pytania lub poszukujecie doświadczonej firmy spedycyjnej i agencji celnej, która zajmie się waszym transportem lotniczym, które kompleksowo wesprą Was w procesie importu, serdecznie zapraszamy do kontaktu drogą mailową, telefoniczną lub za pośrednictwem formularza kontaktowego dostępnego na naszej stronie internetowej.







